公司简介 公司新闻 综合资讯 产品展示 产品目录 客户反馈 联系我们 电子邮局
  主要产品为静态混合器、动态混合设备、传热反应设备、过滤设备、消声设备、阻火设备等

罐下采样器
SJ乏气分油器
SQ蒸汽分水器
SCXQ取样冷却器
采样器
SG视镜
G呼吸阀,阻火呼吸阀
P阻火器
氧气阻火管
中央乙炔回火防止器
内外筒式乙炔回火防止器
氧气用点阀箱
乙炔气用点阀箱
煤气安全阀箱
氧气压力调节阀组
混合器
 静态混合器
 静态混合反应器
 管道混合器
 SQS型汽水混合器
 QD/HT型蒸汽减温器
 蒸汽减温减压器
 管道混合反应器
 JHF型高粘换热混合器
 浸没式汽水加热器
塔式反应器
管式反应器
环管反应器
高效换热器
萃取塔
管道过滤器
自清洗过滤器
空气过滤器
灭菌过滤器
滤件系列
精细过滤器
粉体输送设备
粉体混合设备
液体搅拌设备
消声器
排水器
纸浆漂白专用设备
除污器(滤水器)
喷射器
纤维除雾器
自动进料搅拌釜

 
喷射器
PSQ-型蒸汽喷射真空泵
PSG-气固喷射器
PSB电线电缆燃烧仪检测喷射器
PSC活性炭喷射器
PSS水泵房喷射节能器
PSY生物柴油喷射器
PST脱硫喷射器
PSD-地坑喷射器
PSJ喷射加热器
罐用喷射器
PSK开工抽引器
PSZ罐底焊缝真空检漏盒抽空器
液固喷射器
抽空器
 
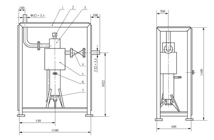
C2H2V/N型内外筒式乙炔回火防止器
1、产品用途
内外筒式乙炔回火防止器为防爆产品。适用于乙炔气(或其它可燃气体)管道中间和乙炔气用户点,能有效防止和消除管道回火。其原理是:在产生管道回火的情况下,(1)由于瞬时压力升高时使位于底部的阀芯下落堵位气口及时切断气源;(2)当瞬时压力升高到大于0.177~0.275MPa时,设置在筒体顶部的安全膜片爆破随即泄压,切断火源,确保系统安全。对于乙炔气或其它液化气的供应单位和使用单位来说,如果还没有其它能有效防止回火措施的话,本产品应是必要的。
2、结构特点
2.1内筒体顶端为安全膜盖结构,当系统压力升至0.177~0.275MPa时膜片会自动爆破泄压。因此用户在调换膜片时,不得使用厚度超过0.05的铝板,且一定要经过试验后才能安装。
2.2内外筒体具有贮气,稳压作用,能减少供气压力的波动,有利于平稳燃烧。
2.3本产品在使有用前应拧开水位阀芯,从孔口灌水至溢出即拧紧,不得漏气和漏水,灌水具有防止回火和清选 气体的作用。
3、产品外形尺寸及部件名称见下图
4、主要技术参数
公称通径(mm)
DN25
设计压力(MPa)
PN0.15
使用压力(MPa)
PN0.02~0.12
使用温度(℃)
常温
流量(Nm3/h)
35
爆破压力(MPa)
PN0.177~0.275
重量(kg)
220
 说明:连接法兰按JB/T81-94设计制造,用户如需选用其它标准和规格的连接法兰,请在订货中说明。
 
南通沃尔驰石化工程有限公司 地址:启东市汇龙镇中央河中路691号 邮编:226200 http://www.yanqin.cn E-mail:13862978163@126.com
电话:0513-83325673 传真:0513-83119878 手机: 13862978163
减温器 | 减温减压器 | 减温减压装置